


Voir les 13 photosCe logement en étage avec un parking, une entrée indépendante, et une terrasse personnelle possède une vue panoramique sur mer. Il est situé en étage dans une maison indépendante comprenant trois autres gîtes mitoyens avec entrées indépendantes.
Il se compose d’un séjour comprenant 2 lits gigognes 90x190cm , d’une chambre comprenant 1 lit de 140x190cm, d’une cuisine équipée, d’une salle d’eau et un WC séparé .
Son confort intérieur et ses équipements :
Entre autres, réfrigérateur avec compartiment congélateur, Four combiné micro-ondes, lave-vaisselle, télévision, lave-linge (gratuit) communs aux 4 gîtes dans un local indépendant à proximité sur la propriété, .
Espace Wi-Fi aménagé en extérieur sur la propriété (Hotspot sécurisé)
Son confort extérieur :Vue panoramique sur la mer, Terrasse , Salon de jardin, Barbecue et Parking.
Modalités de paiement et autres conditions :
A la réservation : Acompte de 25 %;
Un mois avant l’arrivée, règlement du solde ;
A l’arrivée , :
– Caution CB (empreinte bancaire-non débitée)=Dépôt de garantie : 150euros
– A régler Taxe de séjour en sus selon le tarif en vigueur.
Options possibles :
Option ménage fin de séjour : 55euros- Option location draps : 18euros/lit -Option location serviettes de toilette : 14 euros /personne.
Assurance annulation possible (séjour – ou séjour transport / nous demander)
Arrivée entre 17H00 et 19h / Départ avant 10h
Caution CB de 150 euros- Taxe de séjour en sus selon le tarif en vigueur. – Le ménage est à réaliser par les locataires avant le départ et fait l’objet d’un état des lieux par les propriétaires avant restitution de la caution.
Que vous aimiez les plages de sable fin (1.5km), les activités nautiques(paddle, plongée,…) les randonnées ( sentier “intervillages “à proximité, mais aussi les sentiers des “douaniers” en bord de mer) , la rivière et les fameuses “baignoires” en forêt de Tartagine (25km), une des plus belles forêts de Corse ou encore visiter le village des Tortues de Moltifao où vous verrez les tortues d’Hermann qui ne survivent que dans le Massif des Maures et en Corse, nous serons toujours heureux d’échanger avec vous sur notre belle région où la beauté de la nature s’exprime mais également sur sa richesse patrimoniale et culturelle.
Venez profiter de la vie à proximité de la mer avec vue sur mer et montagne qui apporte un bien-être renouvelé, ressourçant que nous sommes heureux de partager.
| Téléviseur | Chaines satellites |
| Salon de jardin | Barbecue ou plancha |
| Bouilloire | Grille-pain | Machine à café à capsules | Cafetière | Sèche-linge | Lave-linge | Lave-vaisselle | Plaque de cuisson | Micro-onde | Four | Sèche-cheveux | Congélateur | Fer et table à repasser | Réfrigérateur | Aspirateur | Mixer / Blender |
| Douche | Ventilateur | Jeux de société |
| Min. de nuits | Tarif nuit | Tarif semaine | |
| 01/01/2026 au 03/04/2026 | 7 | 71.28€ | |
| 04/04/2026 au 10/04/2026 | 7 | 62.86€ | |
| 11/04/2026 au 22/05/2026 | 7 | 66€ | |
| 23/05/2026 au 03/07/2026 | 7 | € | 545€ |
| 04/07/2026 au 10/07/2026 | 7 | € | 645€ |
| 11/07/2026 au 17/07/2026 | 7 | € | 710€ |
| 18/07/2026 au 21/08/2026 | 7 | € | 765€ |
| 22/08/2026 au 28/08/2026 | 7 | € | 545€ |
| 29/08/2026 au 11/09/2026 | 7 | € | 545€ |
| 12/09/2026 au 31/12/2026 | 7 | 71.28€ |
Disponible
Réservé
Les "lauriers Or" Appartement/Gîte à l'étage avec vue sur imprenable et panoramique sur mer, dans une propriété familiale arborée de 9000 m² , le Domaine Savelli d'Acquaniella , à 1 km de la mer, avec parking privatif .
Ce gîte bénéficie d'un emplacement privilégié : il est situé à environ 1,5 km de plages de sable fin et jouit en même temps d'un environnement campagne puisqu'il est implanté au cœur d'une propriété arborée de 9000 m², face à la mer, à flanc de coteau, offrant une vue imprenable sur mer.
Nous produisons également des agrumes biologiques dans notre verger que nous pourrons vous faire découvrir.
Proche de toutes commodités, à moins de 1 km de l'Ile Rousse et 22km de Calvi et son aéroport, en Haute-Corse, vous pourrez facilement rayonner sur toute cette belle et réputée micro-région qu'est la Balagne.
Vous découvrirez des plages de sable fin baignées d'une eau bleu turquoise. Vous percerez l'âme des villages balanins en parcourant leurs ruelles et en découvrant leur architecture, et leurs artisans. Le sentier "intervillages" passe à proximité de la propriété. De belles balades au coeur de la nature vous attendent.
De retour au gîte, vous pourrez admirer les couchers de soleil sur la mer.
Que vous aimiez les plages de sable fin (1.5km), les activités nautiques(paddle, plongée,...) les randonnées ( sentier "intervillages "à proximité, mais aussi les sentiers des "douaniers" en bord de mer) , la rivière et les fameuses "baignoires" en forêt de Tartagine (25km), une des plus belles forêts de Corse ou encore visiter le village des Tortues de Moltifao où vous verrez les tortues d'Hermann qui ne survivent que dans le Massif des Maures et en Corse, nous serons toujours heureux d'échanger avec vous sur notre belle région où la beauté de la nature s'exprime mais également sur sa richesse patrimoniale et culturelle.
Venez profiter de la vie à proximité de la mer avec vue sur mer et montagne qui apporte un bien-être renouvelé, ressourçant que nous sommes heureux de partager.
Vue panoramique sur mer depuis la terrasse
Vue sur mer depuis le séjour
salon / salle à manger
Vue depuis la propriété
cuisine
vue sur le jardin depuis la cuisine
chambre avec vue mer
sdb et wc séparé
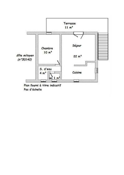
plan du logement à titre indicatif
notre verger d'agrumes bio à visiter
Plage de Bodri à 1.5km du logement
plages à 1.5km
Site protégé












Modalités de paiement et autres conditions :
A la réservation : Acompte de 25 %;
Un mois avant l'arrivée, règlement du solde ;
Assurance annulation possible (séjour - ou séjour transport / nous demander)
A l'arrivée ,entre 17H00 et 19h :
- Caution CB (empreinte bancaire-non débitée)=Dépôt de garantie : 150euros
- A régler Taxe de séjour en sus selon le tarif en vigueur.
Départ avant 10h
Options possibles :
Option ménage fin de séjour : 55euros- Option location draps : 18euros/lit -Option location serviettes de toilette : 14 euros /personne.
LVP-DIRECT vous remercie pour votre intérêt pour cette location entre particuliers. Le propriétaire va recevoir votre demande, il vous répondra sous les 24h. Si vous ne recevez aucune nouvelle de sa part, merci de nous contacter à cette adresse contact@lvpdirect.fr
NOS CONSEILS POUR BIEN RÉSERVER AVEC LVP-DIRECT
C’est décidé, pour vos prochaines vacances vous allez louer le logement qui vous convient vraiment, selon vos propres critères !
Il vous reste quelques appréhensions ou inquiétudes face aux nombreuses propositions visibles sur Internet ?
Voici quelques bons conseils et les pièges à éviter pour que vos vacances restent un moment de détente privilégié.
Vous avez opté pour la location de particulier à particulier, c’est le bon choix !
LVP-DIRECT est un groupement associatif de propriétaires refusant le diktat des sites commerciaux qui profitent de l’engouement de la location de vacances pour s’enrichir sur le compte des propriétaires et des vacanciers… Nous souhaitons rester fidèle à l’ADN de notre activité : la relation entre particuliers, offrant un site humain qui laisse place aux échanges entre vacanciers et propriétaires tout en facilitant leur mise en contact via internet.
• Nous vous proposons une sélection de propriétaires respectueux : notre charte de confiance est un gage de qualité, de sérieux et de fiabilité.
• Chaque propriétaire annonçant sur notre site doit prouver son identité et que le bien qu’il propose lui appartient : Cela limite grandement les risques de fausses annonces !
• Chaque propriétaire reste votre unique interlocuteur. LVP-DIRECT n’est pas le mandataire du propriétaire et n’intervient aucunement dans le processus de réservation.
Vous pouvez facilement vérifier par vous même certaines informations
• Chaque bien doit être présenté le plus précisément possible avec une description de l’emplacement, de sa nature (maison, appartement…) le nombre de pièces, chambres, salle de bain, WC, la surface habitable, annexes, couchages…
• Ayez le réflexe de contacter le propriétaire pour lui poser toutes les questions nécessaires concernant les équipements et les prestations du logement. Vérifiez avec lui la disponibilité et la compatibilité de ce bien avec vos attentes, la proximité des activités et des centres d’intérêt recherchés. Vous pouvez aussi demander d’autres photos si besoin…
• Consultez la réputation de la location sur internet à partir de son nom si c’est possible : Les avis laissés par les vacanciers précédents sur différents sites d’annonces donnent généralement une bonne indication sur la qualité de la location et des relations avec le propriétaire. C’est aussi un très bon moyen de comparer les prix entre les différents sites en sachant que certains facturent des frais de réservation pouvant dépasser 15% du prix du loyer !
Si vous décidez de réserver, vous êtes en droit d’exiger de la part du propriétaire un contrat de location qui doit contenir au minimum :
• Votre nom et les dates de votre réservation,
• Les coordonnées exactes du propriétaire et les moyens de le contacter : mail, téléphone…
• L’adresse précise du logement,
• Le descriptif complet de la location,
• Le montant total du loyer (charges comprises ou pas, frais de ménage et /ou les éventuels coûts à votre charge) ainsi que le montant des arrhes ou acompte.
• Le montant de la caution,
• Les modalités de ces paiements.
Votre réservation sera validée après avoir renvoyé un exemplaire de ce contrat signé par les deux parties et le paiement des arrhes (ou acompte).
Un état des lieux doit être fait à votre arrivée lors de la remise des clefs, ainsi qu’à votre départ pour éviter toute contestation par la suite.
Les conditions de la restitution de la caution doivent être clairement stipulées dans le contrat de location.
Emportez le contrat de location avec vous pour avoir sous la main toutes les informations qui vous ont été indiquées.
De votre côté, en bon chef de famille ou de groupe, veillez à faire respecter les lieux et le voisinage pour que tout se passe dans la joie et la bonne humeur !
La location de vacances entre particuliers, c’est avant tout une relation de confiance et de respect mutuel qui se doit d’être accompagnée d’un comportement responsable de part et d’autre.
– SIGNALER UNE ANNONCE –
👉 Nous attachons une grande importance à la qualité des annonces proposées sur notre site. Si malgré notre vigilance vous estimez que cette annonce n’est pas légitime, merci de nous le signaler en précisant les raisons. Nous contacterons directement son propriétaire pour étudier avec lui les raisons de vos doutes.
– BESOIN D’AIDE –
Avez-vous consulté la rubrique « Besoin d’aide » présente dans votre espace membre ?
👉 La réponse à votre question attend peut-être votre lecture…
Si malgré tous nos efforts dans la rédaction de ces guides vous n’avez pas trouvé la réponse à votre question, contactez-vous. Nous vous aiderons à trouver une solution adaptée à votre situation.